土木与环境工程学院举办第三届建筑制图大赛
发布日期:2013-05-27
本网讯(通讯员 房宇晴)为激发广大同学的学习兴趣,掌握制图技能,培养实践动手能力,高大家的竞技能力。近日,土木与环境工程学院举办了第三届建筑制图大赛。
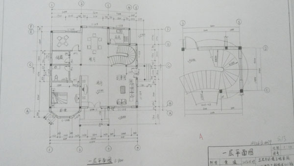
本次建筑制图大赛分为初赛、决赛两个阶段,从4月初开始,历时一个多月。经过广泛宣传,全院共500多人报名参加初赛,初赛阶段组织者给每位参赛同学一个建筑平面图,参赛者在一周内按比例绘制,指导老师根据建筑制图规范进行批改,以出错率最少的作品胜出。最终从中挑选出69名选手进入决赛。



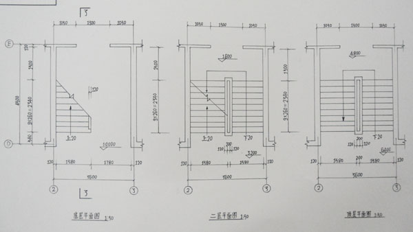
决赛由两部分构成,一是理论考试,通过客观题考核参赛者的基础制图理论。二是现场制图,根据统一制定的楼梯剖面图,现场绘制,三小时内完成,以出错率和完成度两项指标结合基础理论得分决定最终成绩。
经过指导教师的严格审核。最终,孙灯想等4位同学获得一等奖,王慧等7位同学获得二等奖,夏超群等12位同学获得三等奖。


据悉,此次建筑制图大赛,是结合各专业课程开设情况和学习进度,将比赛与专业学习良好地结合起来,是该院“以赛促学”系列活动之一。大赛深受同学们喜爱,不仅激发了大家的学习热情,也检验了制图基本功,强化了实践意识,取得了良好效果。
(审核:计勇,责任编辑:张志彦)

